Шина монтажная
Шина монтажная (шинорейка) для воздуховодов применяется для создания фланцевого соединения прямоугольных воздуховодов. Это наиболее популярный монтажный элемент для участков воздуховодов и фасонных элементов прямоугольной формы.
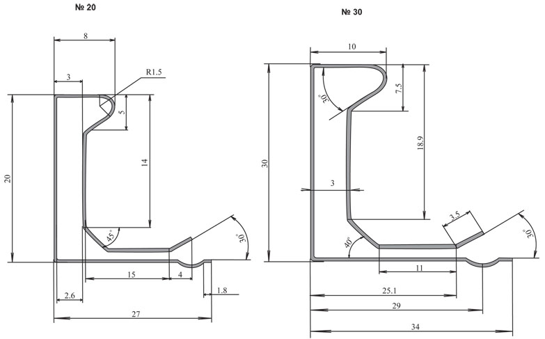
Шина монтажная имеет Г-образную конструкцию.
В зависимости от размера монтируемого прямоугольного воздуховода применяется
шина №20 (толщина 0,5 – 0,7 мм, сторона до 500 мм),
шина №30 (толщина от 0,8 мм, сторона свыше 500 мм)


Особенности:
Шина монтажная (шинорейка) для воздуховодов это наиболее популярный монтажный элемент для участков воздуховодов и фасонных элементов прямоугольной формы. Шина монтажная изготавливается методом прокатки из стали с защитным цинковым покрытием и имеет Г-образную конструкцию.
В зависимости от размера монтируемого прямоугольного воздуховода применяется шина №20 — при соединении воздуховодов толщиной 0,5 – 0,7 мм и шириной стороны до 500 мм, для воздуховодов со стороной свыше 500 мм и толщиной металла от 0,8 мм применяется шина №30.
Стандартная длина шины монтажной – 300 мм. При необходимости их можно нарезать в соответствии с требуемыми параметрами.
Преимущества монтажной шины:
Профиль имеет четкую геометрию;
Легкость сборки;
Не нужно использовать герметики;
Устойчивость к разрушению под воздействием различных внешних факторов;
Повышенная прочность;
Заметное снижение трудоемкости;
Можно соединять детали разного размера;
Надежная фиксация.
Благодаря свойствам материала и характеристикам изделия, соединение с помощью шины является прочным и долговечным.
Шина монтажная для вентиляции в Челябинске от производителя. Заявку на монтажную шину и другие расходники для монтажа вентиляции, а также изготовление воздуховодов и фасонных изделий можно отправить по электронной почте zakaz@pikuspeha.ru или по телефону +7 (351) 277-91-45. Менеджеры отдела продаж свяжутся с Вами в ближайшее время для уточнения деталей Вашего заказа.
Каталог вентиляционных изделий
Закажите звонок менеджера:
ООО "ВЕНТПРО"
- Косарева, 2 к.1
- +7 (351) 277-91-45
- zakaz@pikuspeha.ru
Производство полного спектра вентиляционных изделий из стали. продукция сертифицирована.